Refine Search
Location
Radius
Min Beds
Min Price
Min Price
Max Price
Max Price
Location
Radius
Min Beds
Min Price
Min Price
Max Price
Max Price
 

Frogpool, Nr Perranwell Station, Truro

Under Offer

£299,000

2
2
2
Gallery (18)

Summary

A charming two bedroom semi-detached character cottage tucked away in a peaceful traffic-free setting in the sought-after village of Frogpool. Beautifully presented throughout, the property enjoys a large conservatory, landscaped gardens and is within easy walking distance of the popular Cornish Arms pub.

Full Description

THE PROPERTY
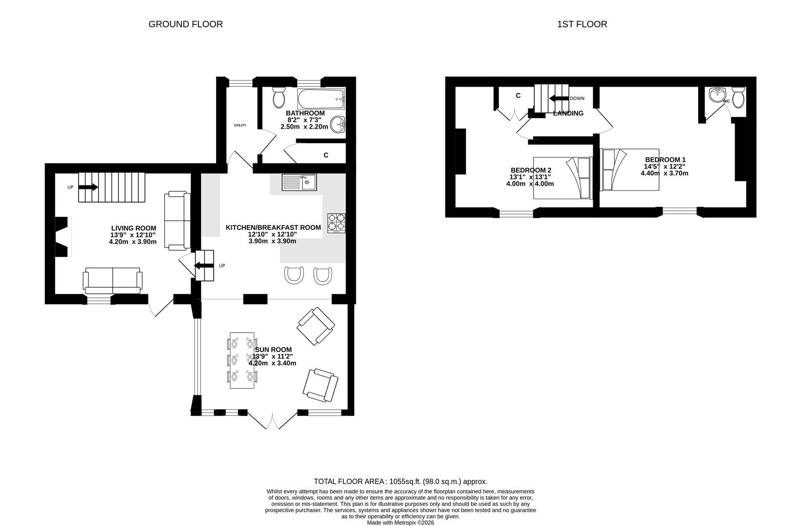
This delightful two-bedroom character cottage is presented in excellent decorative order and occupies a tucked away position within a peaceful village setting. The property benefits from the right to park several vehicles within access land belonging to the neighbouring cottage, with a pedestrian right of way leading to a side gate and into the cottage garden.

The gardens have been attractively landscaped, featuring a sunny patio with stone borders and steps rising to a generous lawned garden above, creating a lovely space for relaxing or entertaining. The front door opens into a cosy living room with a wood burning stove set within a character fireplace and an attractive beamed ceiling.

The kitchen is fitted with beech wood worktops and integrated appliances including a Neff oven and hob, Neff dishwasher and built-in Bosch fridge, with space for an under-counter freezer. This opens into a large conservatory providing an excellent dining and living space, with French doors leading onto the patio and garden. The ground floor also includes a useful utility area with space for a washing machine and a bathroom fitted with a white suite and a Mira Sport electric shower over the bath.

Upstairs are two generous double bedrooms, one benefiting from an en-suite WC and wash basin. The cottage also benefits from UPVC double glazing, electric heating and the addition of the wood burning stove. Outside, the landscaped gardens combine patio and lawned areas and include a large garden shed ideal for storage or hobbies.

THE LOCATION
Frogpool is a charming and well-regarded village set within the rolling countryside of mid-Cornwall, conveniently positioned between Truro and Falmouth. The village sits on the edge of Perranwell Station and Cusgarne, both reachable by a pleasant countryside walk (see photo/MAP)

At the heart of Frogpool is the popular Cornish Arms pub, known for its welcoming atmosphere and good food and a Methodist Church. Primary schools are available at both Perranwell Station and Cusgarne, making the area appealing for families. Nearby Cusgarne is home to a well-regarded organic farm shop (2 minute drive or 15 minute walk), while the Bissoe Cycle Trail offers miles of scenic cycling and walking routes with several popular cafés along the way.

Transport links are excellent with a regular bus service and the nearby railway station at Perranwell Station providing direct connections between Truro and Falmouth.

ADDITIONAL INFORMATION
Tenure - Freehold. Possession - Vacant possession upon completion with the benefit of no onward chain. Services - Mains water and electricity. Private drainage (septic tank located on the neighbours land). Council Tax - Band C. EPC Rating - 34 (F)

Viewing & Disclaimer

Viewing
Please contact us on 01326 352302 if you wish to arrange a viewing appointment for this property, or require further information.

Energy Performance Certificate
Click here to view the Energy Efficiency Rating and Environmental Impact Rating for this property.

Disclaimer
Tom Wills - PC1 endeavour to maintain accurate depictions of properties in Virtual Tours, Floor Plans and descriptions, however, these are intended only as a guide and purchasers must satisfy themselves by personal inspection.

Key Features
  • Charming and spacious cottage
  • 2 Large double bedrooms
  • Over 1,000 sq.ft of accommodation
  • Sitting room with woodburning stove
  • Sociable kitchen/family room
  • Sunny patio and generous lawned garden
  • Tucked away in a traffic-free position
  • Provision for tandem-style multi-vehicle parking
  • Short walk to The Cornish Arms Pub
  • Easy access to Falmouth and Truro plus North and South Coasts
IE8 Alert! Cookie Alert!

To get the best possible experience using our website we recommend you upgrade to a modern web browser. More info

Location
Radius
Min Beds
Min Price
Min Price
Max Price
Max Price
Location
Radius
Min Beds
Min Price
Min Price
Max Price
Max Price