Refine Search
Location
Radius
Min Beds
Min Price
Min Price
Max Price
Max Price
Location
Radius
Min Beds
Min Price
Min Price
Max Price
Max Price
 

Only 3 Miles from Falmouth, Trenoweth, Nr Penryn

Under Offer

£995,000

4
2
3
Gallery (40)

Summary

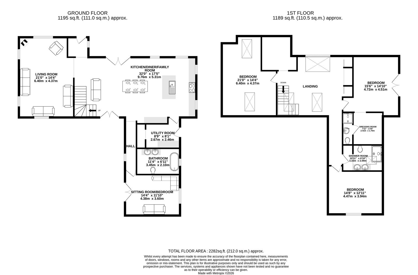
A striking contemporary home set within approximately 3.4 acres, enjoying far-reaching views across open countryside towards Falmouth Bay. Tucked away in a peaceful semi-rural position yet highly convenient for surrounding towns and the south Cornish coast, this exceptional property combines bold modern architecture with spacious accommodation (2,281 sq.ft) and beautiful natural surroundings.

Full Description

Thoughtfully designed using high-quality natural materials including slate, stone, oak and timber cladding, the property sits in an elevated south-facing position allowing the principal rooms to enjoy spectacular views across its own land and beyond towards Argal Reservoir, Falmouth Bay and the Lizard Peninsula.

Large aluminium-framed windows and doors flood the interior with natural light while perfectly framing the surrounding landscape. The accommodation has been designed with modern living in mind, centred around an impressive main family room and complemented by a striking oak staircase with glass balustrading leading to a dramatic first-floor galleried living area with floor-to-ceiling glazing

THE LOCATION
Hidden Springs enjoys a peaceful setting along a quiet country lane close to the village of Mabe Burnthouse, while remaining conveniently positioned for the surrounding towns and coast.
•Village shop, pub and primary school in Mabe Burnthouse
•Scenic walks and café at Argal Reservoir
•Approximately 1 miles to Penryn Campus
•Around 1.5 miles to the historic harbour town of Penryn
•3 Miles from Mawnan Smith and The Helford River
•About 3 miles to the vibrant coastal town of Falmouth with beaches, sailing and access to the South West Coast Path

INTERNAL SPECIFICATION
• Large aluminium-framed windows and doors
• Striking oak staircase with glass balustrading
• Dramatic galleried living space overlooking the countryside
• Contemporary open-plan living layout
• Four generous double bedrooms
• Principal bedroom with dressing area and en-suite shower room
• Stylish family shower room serving additional bedrooms
• Ground floor bedroom and large bathroom
• Tall vaulted ceilings enhancing space and light
• High levels of insulation throughout
• Air source heat pump heating system
Underfloor heating across the ground floor

EXTERNAL SPECIFICATION

• Elevated south-facing setting
• Approx. 3.5 acres of gardens and land
• Gravel forecourt providing extensive parking
• Space for boats, trailers or caravans
• Landscaped gardens with gravel terraces and pathways
• Established planting including palms, shrubs, fruit bushes and hedging
• Gently sloping pasture field forming part of the grounds
• Attractive pond fed by a natural stream
• Beautiful open countryside views

ADDITIONAL INFORMATION
Tenure - Freehold. Services - Mains electricity and water are connected to the property. Air source heating provides hot water and central heating. Private drainage. Fibre broadband to the property. EPC - 88 (B) . Council Tax - Band F. Possession - Vacant possession with no onward chain. VIEWING ARRANGEMENTS - BY APPOINTMENT WITH TOM WILLS PROPERTY AGENTS.

Viewing & Disclaimer

Viewing
Please contact us on 01326 352302 if you wish to arrange a viewing appointment for this property, or require further information.

Energy Performance Certificate
Click here to view the Energy Efficiency Rating and Environmental Impact Rating for this property.

Disclaimer
Tom Wills - PC1 endeavour to maintain accurate depictions of properties in Virtual Tours, Floor Plans and descriptions, however, these are intended only as a guide and purchasers must satisfy themselves by personal inspection.

Key Features
  • Contemporary architect-designed detached home
  • Approx. 3.4 acres of gardens and land
  • Elevated south-facing position with panoramic countryside and coastal views
  • Four double bedrooms
  • Superb kitchen/dining/family room
  • Principal bedroom suite with dressing area and en-suite
  • Ground floor bedroom and bathroom ideal for guests or multigenerational living
  • Large gravel forecourt with extensive parking
  • Air source heat pump and underfloor heating
  • Offered with no onward chain
IE8 Alert! Cookie Alert!

To get the best possible experience using our website we recommend you upgrade to a modern web browser. More info

Location
Radius
Min Beds
Min Price
Min Price
Max Price
Max Price
Location
Radius
Min Beds
Min Price
Min Price
Max Price
Max Price