Refine Search
Location
Radius
Min Beds
Min Price
Min Price
Max Price
Max Price
Location
Radius
Min Beds
Min Price
Min Price
Max Price
Max Price
 

Carlidnack Road, Mawnan Smith, Falmouth

Available

£760,000

5
2
3
Gallery (20)

Summary

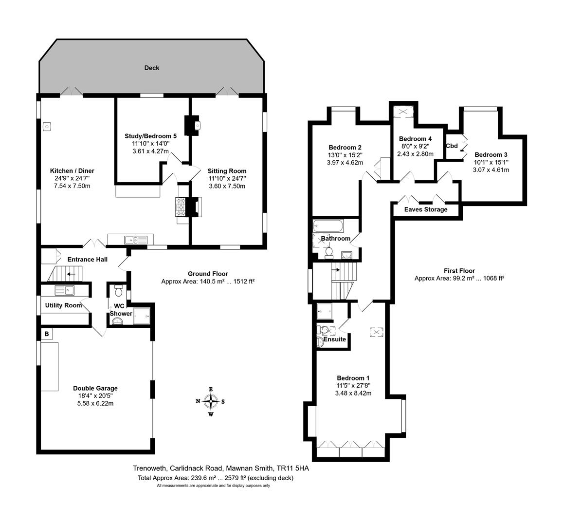
A spacious and individual non-estate five-bedroom detached home set within a superb quarter-acre plot, just a short and relatively level walk from Mawnan Smith village centre. Offering light, versatile accommodation, exceptional parking, an integral double garage and a large rear garden extending into orchard/meadow, this is a home perfectly suited to family life.

Full Description

THE PROPERTY
Trenoweth occupies an impressive and private plot of approximately ¼ acre. A generous gated driveway provides parking for numerous vehicles, with additional space suitable for a boat, trailer or motorhome; a rare and valuable feature within the village.

The gardens are a particular highlight. Well-established lawns extend to the side and rear, leading into a delightful orchard/small meadow area, ideal for children to explore, keen gardeners to enjoy or simply for those wanting space and privacy. There is extensive storage including garden stores and a substantial integral double garage.

From the kitchen/family room, doors open onto a slightly raised south-facing deck, a superb outdoor dining space that captures the sun and provides an ideal setting for entertaining or relaxed summer evenings.

Since purchasing the property in 1997, the current owners have comprehensively updated and significantly extended the house (more than doubling the size), including a side extension, construction of the first floor addition of the double garage. The result is a well-balanced and highly adaptable home with excellent natural light throughout.

The accommodation now offers:
•Five bedrooms (or four plus study/playroom)
•Three bath/shower rooms
•Large triple aspect sitting room
•A spacious kitchen/dining/family room opening onto the garden
•Integral double garage

From the first floor, the rear aspect enjoys open views stretching across rolling farmland beyond the village, a peaceful and enduring outlook that enhances the sense of space.

This is a home designed for growing families, home-working flexibility and long-term village living.

THE LOCATION
Mawnan Smith is widely regarded as one of the most desirable villages on the south Cornish coast, positioned close to the Helford River and surrounding coastline. The area sits within an Area of Outstanding Natural Beauty and is known for its unspoilt landscape, wooded creeks and coastal walks.

The village centre is approximately a five-minute walk from the property and offers an excellent range of amenities including a public house, village stores, café, restaurant, garage and other everyday services.

Helford Passage and the South West Coast Path are within easy reach, offering access to sheltered waters ideal for sailing, paddleboarding and kayaking, as well as stunning coastal walks towards Maenporth and beyond.

ADDITIONAL INFORMATION
Tenure - Freehold. Services - Mains electricity, water and drainage are connected to the property. Oil fired central heating. Council Tax- Band D. EPC rating - 51(E). Possession - Vacant possession upon completion to coincide with our vendor’s onward purchase. VIEWING ARRANGEMENTS - STRICTLY BY APPOINTMENT WITH TOM WILLS PROPERTY AGENTS.

Viewing & Disclaimer

Viewing
Please contact us on 01326 352302 if you wish to arrange a viewing appointment for this property, or require further information.

Energy Performance Certificate
Click here to view the Energy Efficiency Rating and Environmental Impact Rating for this property.

Disclaimer
Tom Wills - PC1 endeavour to maintain accurate depictions of properties in Virtual Tours, Floor Plans and descriptions, however, these are intended only as a guide and purchasers must satisfy themselves by personal inspection.

Key Features
  • Detached individual non-estate five-bedroom home
  • Set on a spacious private plot of approximately ¼ acre
  • Short, level walk to the village centre and local amenities
  • Large driveway with parking for multiple vehicles, boats, or motorhomes
  • Integral double garage and additional storage
  • Generous gardens with lawns and a small meadow/orchard
  • South-facing deck ideal for outdoor dining and entertaining
  • Light, versatile layout with large reception room plus kitchen/family room
  • Located in an Area of Outstanding Natural Beauty near the Helford River
  • On the market for the first time in 29 years.
IE8 Alert! Cookie Alert!

To get the best possible experience using our website we recommend you upgrade to a modern web browser. More info

Location
Radius
Min Beds
Min Price
Min Price
Max Price
Max Price
Location
Radius
Min Beds
Min Price
Min Price
Max Price
Max Price