Refine Search
Location
Radius
Min Beds
Min Price
Min Price
Max Price
Max Price
Location
Radius
Min Beds
Min Price
Min Price
Max Price
Max Price
 

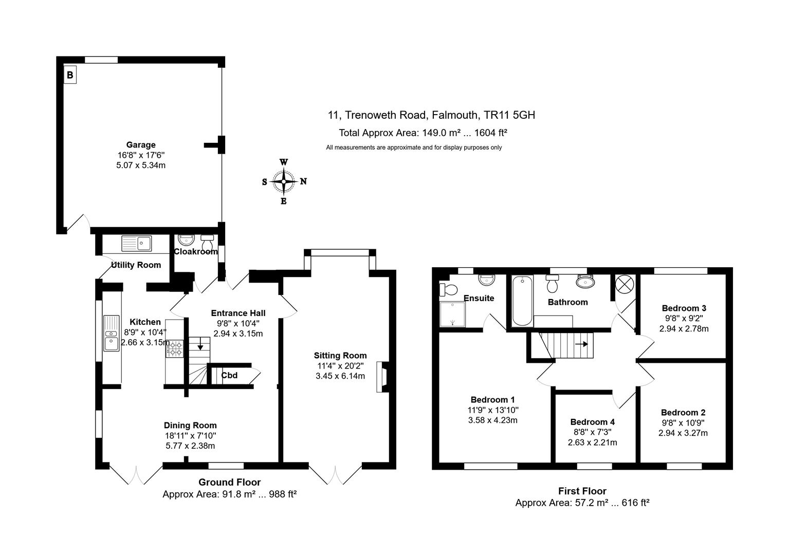
Trenoweth Road, Falmouth

SOLD

£675,000

4
2
2
Gallery (25)

Summary

Enjoy breathtaking bay views from the first floor of this substantial, bright, and airy four-bedroom detached home, located just a few minutes’ walk from Swanpool Beach and Lake via a nearby footpath. Recently modernised to a high standard, the property is set within beautifully private gardens to the side and rear. Additional features include a detached double garage and driveway parking to the front.

Full Description

The larger homes along Trenoweth Road and Penhale Road are widely regarded as among the most desirable within this established and well-regarded development. Number 11 enjoys a particularly appealing position, set closer to the lake than many of its neighbours. This enviable location provides quicker pedestrian access to the beach via a nearby cut-through, while the elevated first floor offers far-reaching sea views enjoyed from three of the four bedrooms.

Over the past decade, the current owner has undertaken a series of well-considered and substantial improvements, enhancing both the presentation and practicality of the property. At the heart of the home is a sleek, high-specification kitchen, refitted with an integrated Bosch dishwasher, AEG gas hob, Hotpoint oven, under cabinet LED lighting and a discreetly concealed recycling and waste system. This is complemented by a fully modernised utility room and an attractively appointed main bathroom. The ground floor cloakroom and first floor en-suite shower room have also been upgraded and modernised, providing contemporary comfort throughout.

Further enhancements include the installation of fitted wardrobes and full internal redecoration, creating a cohesive, light-filled and refreshed interior. The ground floor accommodation is arranged around a central staircase, with all principal rooms enjoying generous proportions and excellent natural light.

Externally, the rear garden has been thoughtfully landscaped to maximise both privacy and seclusion. Designed with ease of maintenance in mind, it features a decked terrace and wrap-around lawns, that offers a superb setting for outdoor relaxation and entertaining. The garden’s orientation and mature planting provide a sheltered retreat that complements the house’s quiet coastal location.

To the front, a private driveway accommodates up to three vehicles and leads to a detached double garage, completing the practical and well-balanced layout of this handsome home.

THE SITUATION
Swans Reach and and particularly Trenoweth Road, is a peaceful residential area on the western outskirts of Falmouth. It has become increasingly popular in recent years, especially since the addition of a pedestrian footpath leading to Swanpool Lake and Beach. From there, the South West Coast Path offers stunning sea-facing walks, connecting Falmouth to the Helford River.

ADDITIONAL INFORMATION
Tenure - Freehold. Possession - Vacant possession upon completion to coincide with our client’s onward purchase. Services - Mains gas, electricity, water and drainage. Council Tax - Band E. Gas fired central heating. EPC rating 68(D).

Viewing & Disclaimer

Viewing
Please contact us on 01326 352302 if you wish to arrange a viewing appointment for this property, or require further information.

Energy Performance Certificate
Click here to view the Energy Efficiency Rating and Environmental Impact Rating for this property.

Disclaimer
Tom Wills - PC1 endeavour to maintain accurate depictions of properties in Virtual Tours, Floor Plans and descriptions, however, these are intended only as a guide and purchasers must satisfy themselves by personal inspection.

Key Features
  • Handsome detached house
  • Four bedrooms and two bath/shower rooms plus ground floor WC
  • Superb bay/sea views from 3 bedrooms
  • Lovely light and flowing accommodation
  • Recently modernised
  • Low maintenance and economical
  • Highly private and secluded garden
  • Close to Swanpool Beach
  • Double garage
  • Driveway parking for 2-3 vehicles
IE8 Alert! Cookie Alert!

To get the best possible experience using our website we recommend you upgrade to a modern web browser. More info

Location
Radius
Min Beds
Min Price
Min Price
Max Price
Max Price
Location
Radius
Min Beds
Min Price
Min Price
Max Price
Max Price