Refine Search
Location
Radius
Min Beds
Min Price
Min Price
Max Price
Max Price
Location
Radius
Min Beds
Min Price
Min Price
Max Price
Max Price
 

Arwenack Avenue, Falmouth

SOLD

£595,000

3
2
2
Gallery (15)

Summary

Situated on one of Falmouth's most attractive, desirable, and peaceful tree-lined streets, this stunning 3-bedroom, 2-bathroom house is just a short, level walk from the town centre and only a 5-minute stroll to Gyllyngvase Beach. The property has been modernized and refitted with style, using high-quality materials throughout. It boasts lovely front and rear gardens, a spacious driveway with ample parking, and a generous detached garage. In our opinion, it truly offers the complete package!

Full Description

THE PROPERTY
The previous owner hired an interior designer to oversee the thorough refurbishment of this exceptionally well-positioned house, which now boasts beautifully appointed kitchen and bathrooms, ample built-in storage, and a utility room complementing the fully integrated kitchen with Corian worktops. The windows have been replaced with aluminium double glazing, and bi-folding doors now connect the dining room to the rear garden. Additional improvements include a complete redecoration and new flooring throughout.

The garden areas are surprisingly private, thanks to the mature shrubs and greenery along the side and front boundaries, which also offer a lovely outlook from the living room. The entire property exudes a wonderful atmosphere, making it hard to believe you're right in the heart of town!

A deep driveway provides parking and leads to a substantial detached garage. Some prospective buyers may consider excavating a section of the front garden to expand the parking area, should they need space for storing boats or motorhomes.

ADDITIONAL INFORMATION

The concrete screening test result from 2017 states ‘’Samples requiring classification have been classed as Grade A1 or A2 (sound – contains mainly Group 1 aggregates and shows no significant signs of unsoundness). In summary, the property is considered to be generally acceptable security for mortgage lending and private security purposes’’.

Tenure - Freehold. Services - Mains electricity, water and drainage are connected to the property. EPC - 59 (D) . Council Tax - Formerly Band C (business rates currently apply).Possession - Subject to the existing holiday bookings which run up to October 2025. No onward chain.

Viewing & Disclaimer

Viewing
Please contact us on 01326 352302 if you wish to arrange a viewing appointment for this property, or require further information.

Energy Performance Certificate
Click here to view the Energy Efficiency Rating and Environmental Impact Rating for this property.

Disclaimer
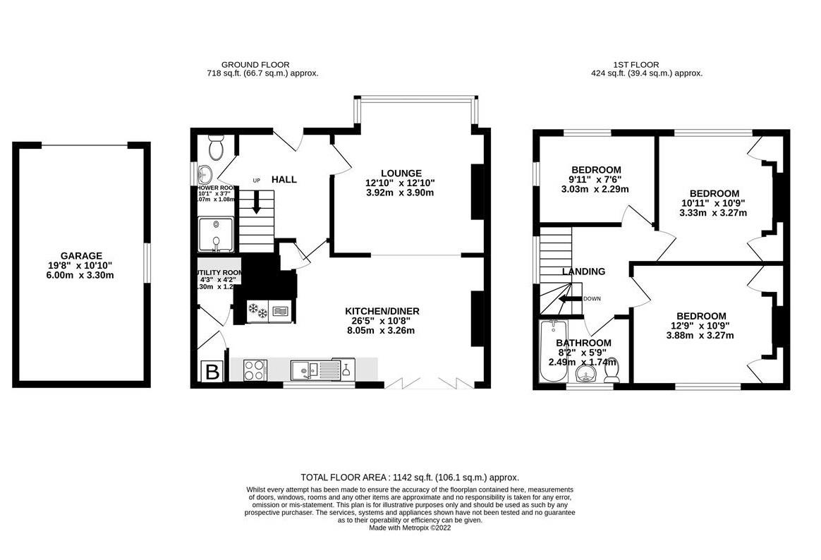
Tom Wills - PC1 endeavour to maintain accurate depictions of properties in Virtual Tours, Floor Plans and descriptions, however, these are intended only as a guide and purchasers must satisfy themselves by personal inspection.

Key Features
  • Beautifully and recently renovated
  • Lovely quiet central position
  • Attractive tree-lined avenue
  • 3 Bedrooms
  • 2 bath/shower rooms
  • Deep driveway parking
  • Generous detached garage
  • Front and rear gardens
  • Aluminimum windows and bi-folding doors
  • No onward chain
IE8 Alert! Cookie Alert!

To get the best possible experience using our website we recommend you upgrade to a modern web browser. More info

Location
Radius
Min Beds
Min Price
Min Price
Max Price
Max Price
Location
Radius
Min Beds
Min Price
Min Price
Max Price
Max Price