Refine Search
Location
Radius
Min Beds
Min Price
Min Price
Max Price
Max Price
Location
Radius
Min Beds
Min Price
Min Price
Max Price
Max Price
 

Conway Road, Falmouth

SOLD

£600,000

4
3
2
Gallery (22)

Summary

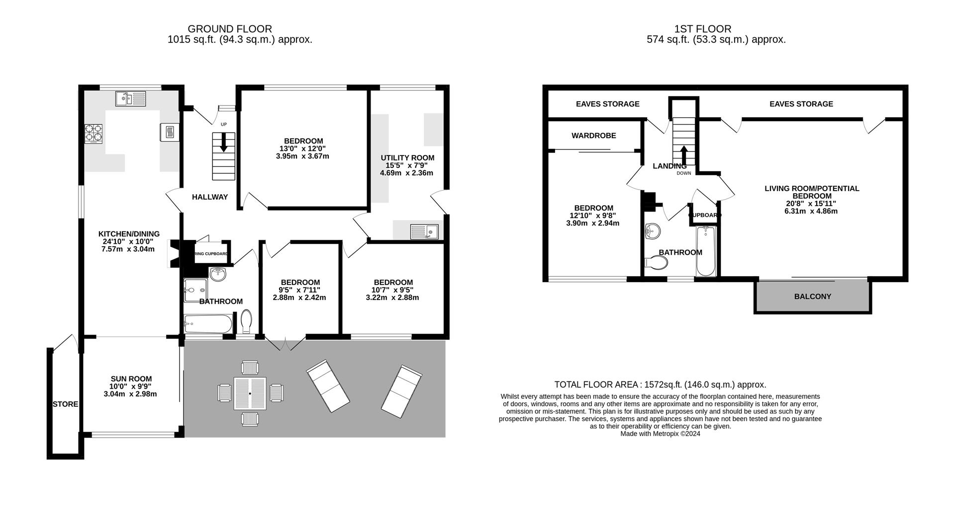
An impressively extended and stylishly modernised four (potentially five) bedroom detached house, offering highly versatile accommodation. The property occupies a wonderful plot with a stream at the foot of the garden and unspoiled woodland beyond.THE SITUATIONPositioned on the preferred 'lower side' of this extremely popular residential road where the properties border unspoiled woodland and a small stream. Falmouth secondary school is a short 5-10 minute walk away. Many prospective purchasers may not be aware of the connecting footpath at the head of Venton Road which leads to Shelburne Road and Penmere Station - , through the Nature Reserve, connecting to Swanpool Lake and Beach - approximately 30 minutes walk, in all.

Full Description

Several distinctive features set this home apart. Firstly, the accommodation is exceptionally adaptable, ideal for families seeking multiple living areas or additional bedrooms, as well as those working from home or cohabiting families. Secondly, the location is superb. The rear windows, doors, balcony, and terrace all overlook a large, south-facing garden that gently slopes down to a slow-flowing stream, with woodland beyond, teeming with wildlife. Exterior storage is plentiful with 2 timber sheds within the garden.

We believe the property was originally built around 1960 as a modest three-bedroom property of traditional construction. The previous owners undertook significant changes to expand the accommodation, including adding a first floor, constructing a sunroom, and converting the garage into a large utility room. Since then, our clients have made further improvements, including refitting the kitchen, installing new windows, constructing a superb wood-effect composite deck with stainless steel handrails, and refreshing the general decor. Within the kitchen/diner is a superb multi-fuel (wood burning) stove.

Now, the property is spacious, versatile, and immaculately presented. We strongly recommend arranging an early viewing to fully appreciate all it has to offer.

ADDITIONAL INFORMATION
Tenure - Freehold. Possession - Vacant possession upon completion to coincide with our client's onward purchase. Services - Mains gas, electricity, water and drainage. Council Tax - Band D. EPC rating - 69 (C). Gas fired central heating. Broadband Speed 100 mbps.

Viewing & Disclaimer

Viewing
Please contact us on 01326 352302 if you wish to arrange a viewing appointment for this property, or require further information.

Energy Performance Certificate
Click here to view the Energy Efficiency Rating and Environmental Impact Rating for this property.

Disclaimer
Tom Wills - PC1 endeavour to maintain accurate depictions of properties in Virtual Tours, Floor Plans and descriptions, however, these are intended only as a guide and purchasers must satisfy themselves by personal inspection.

Key Features
  • 4 or possibly 5 bedrooms
  • Delightful position
  • Lovely southerly views to unspoiled woodland
  • Large gently descending gardens
  • Generous driveway plus 2 timber stores
  • 2 bath/shower rooms
  • Potential to subdivide for cohabiting families
  • Impressive decked terrace with sun all day
  • Bordering a stream to the rear
  • Thoroughly modernised
IE8 Alert! Cookie Alert!

To get the best possible experience using our website we recommend you upgrade to a modern web browser. More info

Location
Radius
Min Beds
Min Price
Min Price
Max Price
Max Price
Location
Radius
Min Beds
Min Price
Min Price
Max Price
Max Price